Углеподача УСУ в Кентау

Скребковая углеподача УСУ
Углеподача УСУ
ТС 2-30 транспортер чертеж
Транспортер ТС 2-30 чертеж
Транспортер УСУ углеподачи
Транспортер углеподачи УСУ
Скребок для углеподачи УСУ
Скребок углеподачи УСУ
Звездочка для углеподачи УСУ
Звездочка углеподачи УСУ
Цепь для углеподачи УСУ
Цепь углеподачи УСУ
Секции для углеподачи УСУ
Секции углеподачи УСУ
Производство углеподачи УСУ
Углеподача УСУ производство
Изготовление углеподачи УСУ
Углеподача УСУ изготовление
Чертеж транспортера ТС 2-30 с углом наклона 30°
Транспортер ТС 2-30 с углом наклона 30° чертеж
Чертеж транспортера ТС 2-30 с углом наклона 45°
Транспортер ТС 2-30 с углом наклона 45° чертеж
Скребковая углеподача УСУ
ТС 2-30 транспортер чертеж
Транспортер УСУ углеподачи
Скребок для углеподачи УСУ
Звездочка для углеподачи УСУ
Цепь для углеподачи УСУ
Секции для углеподачи УСУ
Производство углеподачи УСУ
Изготовление углеподачи УСУ
Чертеж транспортера ТС 2-30 с углом наклона 30°
Чертеж транспортера ТС 2-30 с углом наклона 45°
Цена
7 632 000 ₸
От 7 632 000 ₸ с доставкой до г.
Логотип WhatsApp Связаться
по WhatsApp
Углеподача УСУ применяется в системах топливоподачи твердотопливных отопительных и промышленных механизированных котельных. Стоимость рассчитывается за погонный метр. Цена погонного метра от

Углеподача УСУ

Применение транспортера

  • в паровых и водогрейных угольных котельных с механическими топками ТШПМ, ТЛЗМ, ТЛПХ, ТЧЗМ, РПК, ЗП РПК;
  • в модульных котельных;
  • в различных отраслях промышленности для транспортирования сыпучих веществ.

Конструкция углеподачи

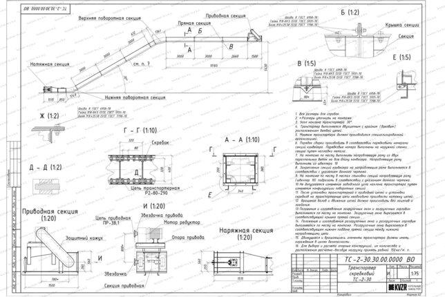
Углеподача УСУ представляет скребковый конвейер, собранные между собой последовательно секции с крышками, для транспортировки угля, в концевых точках крайних коробов смонтированы валы с зубчатыми колесами для установки цепи со скребками, к одному из валов посредством редуктора прикладывается усилие для передачи вращения зубчатых колес и соответственно движению цепи.

Конструкция углеподачи УСУ разрабатывается в соответствии с техническим заданием, согласно компоновки котельной, отличается длиной, количеством поворотных секций и расположением привода.

Углеподача УСУ состоит:

  • прямых секций;
  • поворотных секций;
  • приводной секции;
  • редуктора;
  • цепи;
  • скребков;
  • направляющих зубчатых колес;
  • автоматики управления (по согласованию с заказчиком);
  • опорно-каркасных элементов (по согласованию с заказчиком);
  • запорных органов (по согласованию с заказчиком).

Секции углеподачи - это короба с направляющими и зубчатыми колесами для направления цепи. Для удобства обслуживания, очистки коробов, регулирования узлов, а так же проведения ремонтных работ секции конвейера имеют полностью съемную крышку.

Транспортеры УСУ выполняются по ГОСТ 4.21.

Монтаж углеподачи

Углеподача УСУ поставляется секциями в разобранном виде, общая сборка конвейера производится на месте монтажа и выполняется в соответствии с проектом и инструкцией по монтажу и сборке. Собирается конвейер в следующей последовательности: собрать прямые секции и приводную секции, соединить горизонтальную и наклонную части при помощи поворотной секции, установить цепь со скребками в собранные секции, подключить привод и автоматику. В случае необходимости над конвейером устанавливается закрытая галерея.

Чтобы купить углеподачу УСУ воспользуйтесь услугами нашего электронного магазина или обратитесь по телефону +7 (7172) 69-59-73, также необходимо заполнить опросный лист и мы проведем расчет стоимости конвейера по вашей заявке.

Дополнительно потребуется

Бункер для топлива
Цена 4 897 200 тг.
ВДП 15 дробилка
Цена 7 218 600 тг.
ДО-1М дробилка
Цена по запросу
Золошлакоудаление УСШ скребковое
Цена 7 314 000 тг.
Котел КВм-4.0 с ТЛПХ
Котел КВм 4.0 с ТЛПХ
Вид топкиМеханическая, ТЛПХ
Максимальная тепловая мощность, МВт4
ТопливоТвердое, Уголь
Отапливаемая площадь, м²от 33400 до 44000
Цена 53 958 240 тг.
Транспортер шлакоудаления
Цена 7 314 000 тг.

Похожая продукция

Подъемник скиповый 100
Цена 4 960 800 тг.
Скребковый транспортер ТС 2-30
Цена 7 632 000 тг.

Сертификаты товара

Сертификат на конвейеры скребковые
Сертификат на конвейеры скребковые

Опросные листы

Все опросные листы
Опросный лист на топливоподачу
Заполнить опрос

Собственное производство

Котельный завод производит
  • Паровые котлы от 300 кг до 2.5 тонны пара в час
  • Промышленные водогрейные котлы от 150 КВт до 4 МВт на всех видах топлива
  • Механические топки ТШПМ, шурующая планка и ТЛПХ, ленточное полотно прямого хода
  • Циклоны для очистки воздуха и дымовых газов для производств и промышленных отраслей
  • Транспортеры и системы топливоподачи и шлакоудаления
Подробнее о производстве
Собственное производство
Смотреть видео
с производства